Rif: 4146
CREMONA
CREMONA | - zona San Felice € 365.000- Villa plurifamiliare
- Vendita
- 185 Mq
- 4 Vani
- 3 Camere
- 2 Bagni
- Giardino 305 mq
- Garage 36 mq
- EPI: 20,12 kwh/m2 anno
- Classe energetica: A4
- Descrizione
- Dettaglio immobile
- Consistenze
- Mappa
- Planimetrie
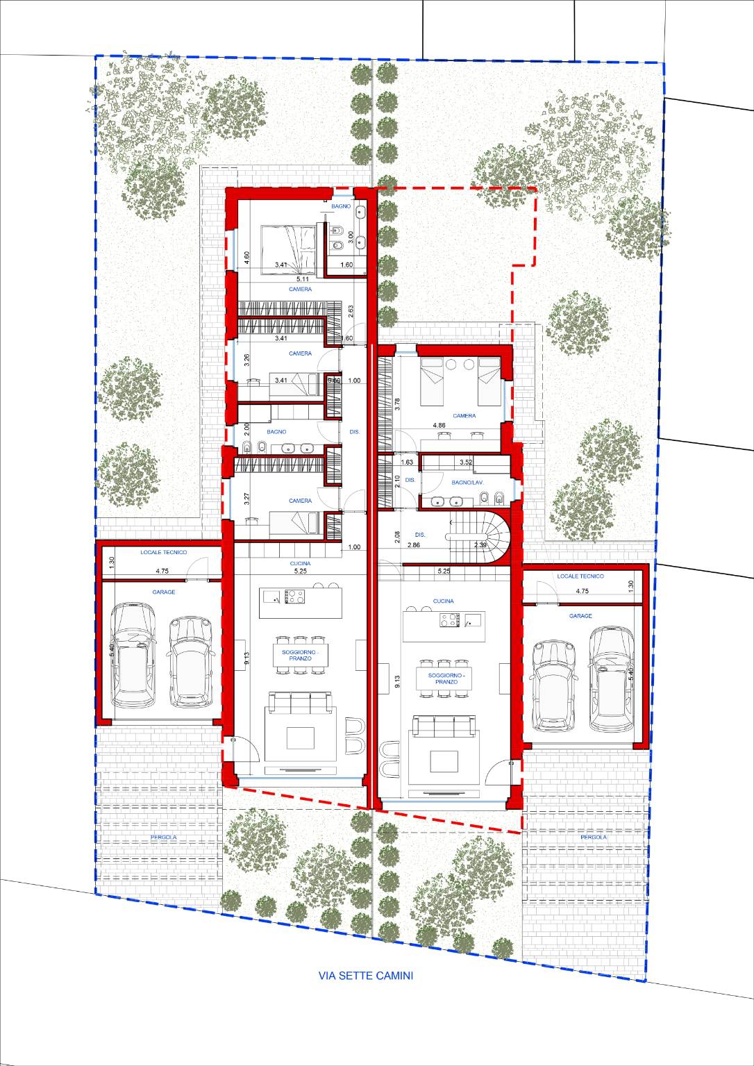
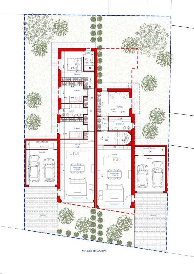
Zona S. Felice, comune di Cremona, proponiamo splendida villa monopiano libera su tre lati di nuova costruzione. Dotata di impiantistica di ultima generazione, ottime finiture con ampia scelta di capitolato, serramenti con doppi vetri, riscaldamento a pavimento in pompa di calore , gas free, cappotto esterno ad alto risparmio energetico. Composta da zona giorno open di grande metratura, doppi servizi, tre camere da letto, garage doppio e giardino di 300 mq. Finiture e disposizione interna a scelta del cliente!!! Classe Energetica "A". Nella stessa bifamiliare proponiamo anche villa di 250 mq. disposta su due livelli con tre camere e doppi servizi, garage doppio, terrazza ed area esterna di oltre 350 mq. ad Eu. 460.000. Chiamaci e/o scrivici per maggiori informazioni e per visionare progetti e capitolato. La classe energetica esposta è quella di progetto.
La nostra agenzia opera sul territorio cremonese da oltre 25 anni con professionalità e serietà, segue compravendite ed affittanze di ogni tipologia di immobile, con particolare attenzione all'espletamento di ogni pratica burocratica. Manteniamo il massimo aggiornamento riguardo tutte le novità fiscali/legislative in materia. Offriamo serietà e professionalità nell'assistenza alle compravendite immobiliari di ogni tipo, gestione locazioni residenziali e commerciali. La nostra missione è quella di dare una copertura a 360° al cliente, seguendolo fin dai primi contatti sino al passaggio di proprietà. Mettiamo a disposizione dell'acquirente la nostra ventennale esperienza consigliandolo sulla eventuale parziale o totale ristrutturazione dell'immobile, collaborando con diversi artigiani locali. Le illustrazioni e le descrizioni presenti in questo annuncio possono contenere degli errori e/o omissioni e non hanno in nessun modo valore contrattuale.
La nostra agenzia opera sul territorio cremonese da oltre 25 anni con professionalità e serietà, segue compravendite ed affittanze di ogni tipologia di immobile, con particolare attenzione all'espletamento di ogni pratica burocratica. Manteniamo il massimo aggiornamento riguardo tutte le novità fiscali/legislative in materia. Offriamo serietà e professionalità nell'assistenza alle compravendite immobiliari di ogni tipo, gestione locazioni residenziali e commerciali. La nostra missione è quella di dare una copertura a 360° al cliente, seguendolo fin dai primi contatti sino al passaggio di proprietà. Mettiamo a disposizione dell'acquirente la nostra ventennale esperienza consigliandolo sulla eventuale parziale o totale ristrutturazione dell'immobile, collaborando con diversi artigiani locali. Le illustrazioni e le descrizioni presenti in questo annuncio possono contenere degli errori e/o omissioni e non hanno in nessun modo valore contrattuale.
Contratto Vendita
Rif 4146
Prezzo € 365.000
Provincia Cremona
Comune Cremona
Zona - Zona San Felice
Indirizzo Via Sette Camini 3">
Vani 4
Camere 3
Bagni 2
Classe energetica
A4 (DL 90/2013)
EPgl,nren 20,12 kwh/m2 anno
Riscaldamento autonomo
Condizioni nuova costruzione
Anno di costruzione 2026
Cucina a vista
| Descrizione | Superficie | Sup. comm. |
|---|---|---|
| Principali | ||
| Immobile - piano terra | 136 Mq | 136 Mqc |
| Box/Garage - piano terra | 36 Mq | 14 Mqc |
| Esterno - piano terra | 22 Mq | 4 Mqc |
| Giardino/Resede | 305 Mq | 30 Mqc |
| Totale | 184 Mqc | |
Zoom della mappa
Apri con:
Apple Maps
Google Maps
Waze
Apri la mappa








