Rif: 4124
CREMONA
CREMONA | - zona Centro € 420.000- Terratetto
- Vendita
- 185 Mq
- 4 Vani
- 3 Camere
- 2 Bagni
- Giardino
- Garage
- EPI: 28,14 kwh/m2 anno
- Classe energetica: A2
- Descrizione
- Dettaglio immobile
- Consistenze
- Mappa
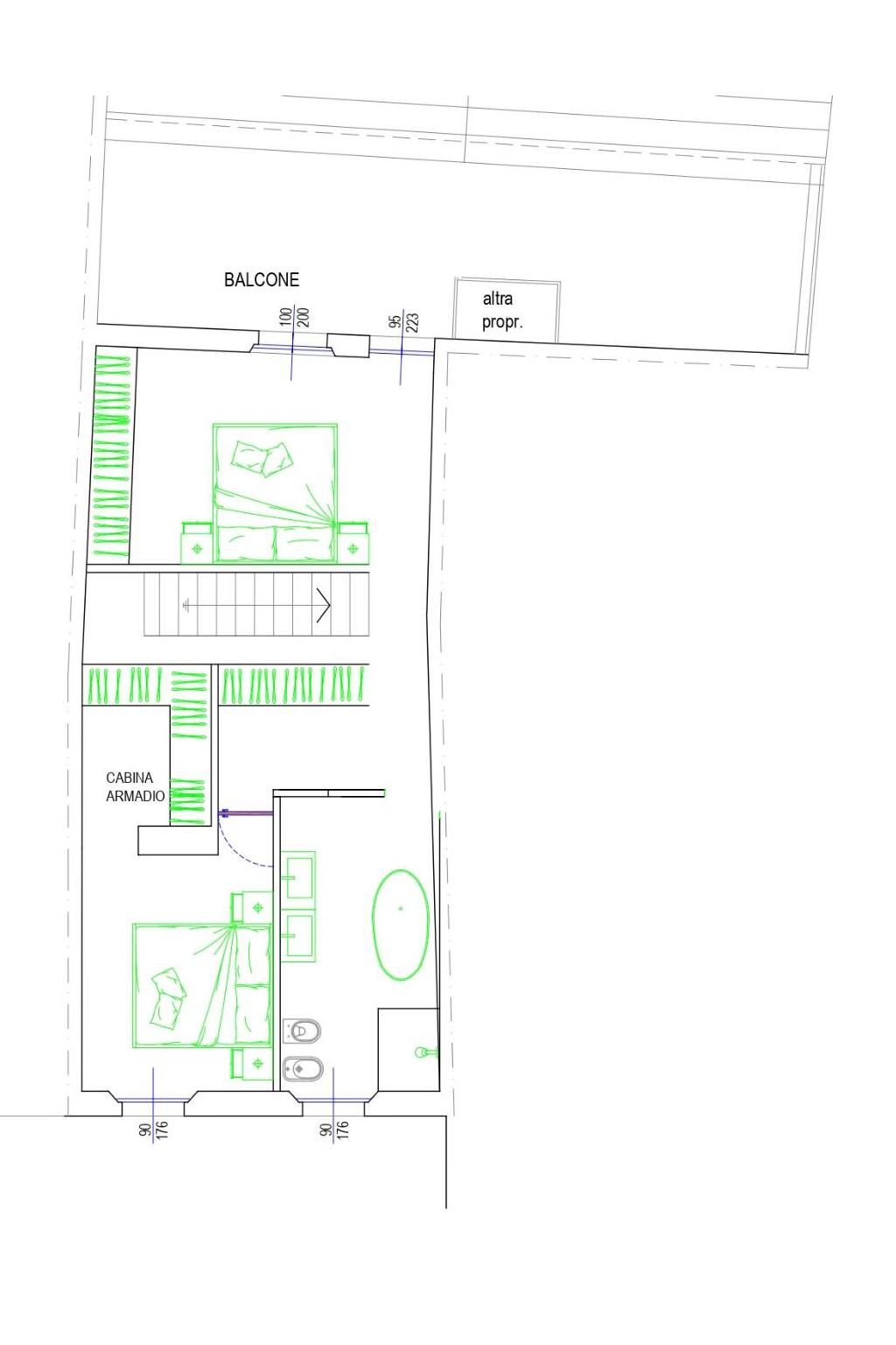
- Planimetrie
In laterale di corso Garibaldi proponiamo in nuova costruzione porzione di casa indipendente disposta su due livelli oltre autorimessa doppia con cortile privato di 25 mq. così composta: p.t. autorimessa e cortile, piano 1° cucina abitabile, soggiorno, terrazzino e bagno, piano 2° due camere da letto con doppia cabina armadio, bagno e terza camera da letto con relativo bagno al piano mansarda. Ottimo il capitolato delle finiture, classe energetica "A" , fotovoltaico con predisposizione all'accumulo, riscaldamento a pavimento, raffrescamento, pavimenti e rivestimenti in gres di ampio formato, portoncino blindato e serramenti in PVC con doppio vetro. Possibilità di personalizzare la disposizione interna e le finiture. Chiamaci e/o scrivici subito per visionare lo stato attuale ed i progetti con il capitolato delle finiture!!!
La nostra agenzia opera sul territorio cremonese da oltre 25 anni con professionalità e serietà, segue compravendite ed affittanze di ogni tipologia di immobile, con particolare attenzione all'espletamento di ogni pratica burocratica. Manteniamo il massimo aggiornamento riguardo tutte le novità fiscali/legislative in materia. Offriamo serietà e professionalità nell'assistenza alle compravendite immobiliari di ogni tipo, gestione locazioni residenziali e commerciali. La nostra missione è quella di dare una copertura a 360° al cliente, seguendolo fin dai primi contatti sino al passaggio di proprietà. Mettiamo a disposizione dell'acquirente la nostra ventennale esperienza consigliandolo sulla eventuale parziale o totale ristrutturazione dell'immobile, collaborando con diversi artigiani locali. Le illustrazioni e le descrizioni presenti in questo annuncio possono contenere degli errori e/o omissioni e non hanno in nessun modo valore contrattuale.
La nostra agenzia opera sul territorio cremonese da oltre 25 anni con professionalità e serietà, segue compravendite ed affittanze di ogni tipologia di immobile, con particolare attenzione all'espletamento di ogni pratica burocratica. Manteniamo il massimo aggiornamento riguardo tutte le novità fiscali/legislative in materia. Offriamo serietà e professionalità nell'assistenza alle compravendite immobiliari di ogni tipo, gestione locazioni residenziali e commerciali. La nostra missione è quella di dare una copertura a 360° al cliente, seguendolo fin dai primi contatti sino al passaggio di proprietà. Mettiamo a disposizione dell'acquirente la nostra ventennale esperienza consigliandolo sulla eventuale parziale o totale ristrutturazione dell'immobile, collaborando con diversi artigiani locali. Le illustrazioni e le descrizioni presenti in questo annuncio possono contenere degli errori e/o omissioni e non hanno in nessun modo valore contrattuale.
Contratto Vendita
Rif 4124
Prezzo € 420.000
Provincia Cremona
Comune Cremona
Zona - Zona Centro
Indirizzo Via Volturno 17">
Vani 4
Camere 3
Bagni 2
Classe energetica
A2 (DL 90/2013)
EPgl,nren 28,14 kwh/m2 anno
Riscaldamento autonomo
Condizioni nuova costruzione
Anno di costruzione 2025
Cucina abitabile
| Descrizione | Superficie | Sup. comm. |
|---|---|---|
| Principali | ||
| Immobile - piano terra | 65 Mq | 65 Mqc |
| Immobile - 1° piano | 60 Mq | 60 Mqc |
| Immobile - 2° piano | 60 Mq | 60 Mqc |
| Totale | 185 Mqc | |
Zoom della mappa
Apri con:
Apple Maps
Google Maps
Waze
Apri la mappa








