Rif: 4092
CREMONA
CREMONA | - zona Centro € 1.900- Locale commerciale
- Affitto
- 108 Mq
- EPI: 577.11 kwh/m2 anno
- Classe energetica: D
- Descrizione
- Dettaglio immobile
- Consistenze
- Mappa
- Planimetrie
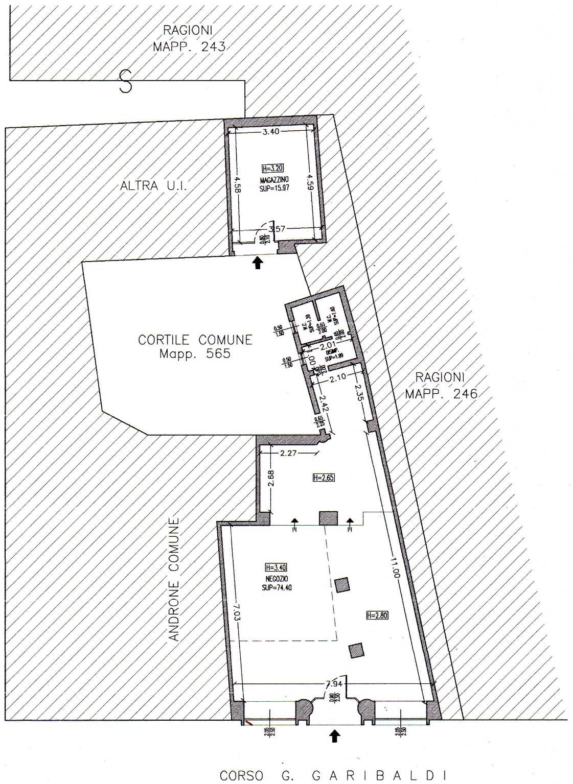
Corso Garibaldi, in zona top shopping, affittiamo locale commerciale, 2 vetrine fronte strada, ottima visibilità. L'immobile è in buono stato di manutenzione, 2 locali, doppi servizi oltre a magazzino di circa mq 16.
La nostra agenzia opera sul territorio cremonese da oltre 25 anni con professionalità e serietà, segue compravendite ed affittanze di ogni tipologia di immobile, con particolare attenzione all'espletamento di ogni pratica burocratica. Manteniamo il massimo aggiornamento riguardo tutte le novità fiscali/legislative in materia. Offriamo serietà e professionalità nell'assistenza alle compravendite immobiliari di ogni tipo, gestione locazioni residenziali e commerciali. La nostra missione è quella di dare una copertura a 360° al cliente, seguendolo fin dai primi contatti sino al passaggio di proprietà. Mettiamo a disposizione dell'acquirente la nostra ventennale esperienza consigliandolo sulla eventuale parziale o totale ristrutturazione dell'immobile, collaborando con diversi artigiani locali. Le illustrazioni e le descrizioni presenti in questo annuncio possono contenere degli errori e/o omissioni e non hanno in nessun modo valore contrattuale.
La nostra agenzia opera sul territorio cremonese da oltre 25 anni con professionalità e serietà, segue compravendite ed affittanze di ogni tipologia di immobile, con particolare attenzione all'espletamento di ogni pratica burocratica. Manteniamo il massimo aggiornamento riguardo tutte le novità fiscali/legislative in materia. Offriamo serietà e professionalità nell'assistenza alle compravendite immobiliari di ogni tipo, gestione locazioni residenziali e commerciali. La nostra missione è quella di dare una copertura a 360° al cliente, seguendolo fin dai primi contatti sino al passaggio di proprietà. Mettiamo a disposizione dell'acquirente la nostra ventennale esperienza consigliandolo sulla eventuale parziale o totale ristrutturazione dell'immobile, collaborando con diversi artigiani locali. Le illustrazioni e le descrizioni presenti in questo annuncio possono contenere degli errori e/o omissioni e non hanno in nessun modo valore contrattuale.
Contratto Affitto
Rif 4092
Prezzo € 1.900
Provincia Cremona
Comune Cremona
Zona - Zona Centro
Indirizzo Corso Giuseppe Garibaldi 3">
Classe energetica
D (DL 192/2005)
EPI 577.11 kwh/m2 anno
Riscaldamento autonomo
Condizioni abitabile
Spese condominiali € 300
| Descrizione | Superficie | Sup. comm. |
|---|---|---|
| Principali | ||
| Negozio - piano terra | 92 Mq | 92 Mqc |
| Magazzino - piano terra | 16 Mq | 16 Mqc |
| Totale | 108 Mqc | |
Zoom della mappa
Apri con:
Apple Maps
Google Maps
Waze
Apri la mappa








